Jellemzőik:
• tetszetős kivitel akár klasszikus vagy modern design esetén
• funkcionális működés, megbízható vízelnyelő képesség
• kellemes meleg tapintás
• maximális baktérium-rezisztencia
• extra erősítés az Öntött szaniter akril zuhanytálcáknál, a kiemelkedő teherbírás érdekében
• az általunk használt szaniter akril sérülés esetén szín azonosan javítható, polírozható
• előlapos tálcáink egységesen, levehető előlappal készülnek (az egyszerűbb karbantartás,és az esetleges duguláselhárítás érdekében) minden esetben előszerelve szállítunk, így biztosított a lábak pontos elhelyezése, a több évtizedes megbízható működésért.
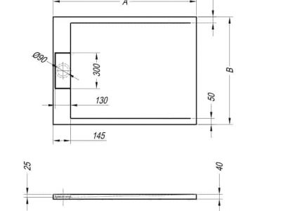
Capo öntött műmárvány zuhanytálca rejtett lefolyóval
Ártartomány: 186 300 Ft - 249 000 Ft
Öntött márvány zuhanytálca rejtett lefolyóval. Lehetőség zuhanykabin felszerelésére.
Minden általunk gyártott zuhanytálcára a törvényi előírásokat messze meghaladó, a piaci átlagnál jóval hosszabb egységes 10 év garanciát vállalunk (Módosított akrilra 7 év)!
A termék beépítéséhez szükséges opciónális tartozékok:












